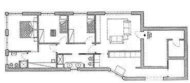
Piano attico composto da due camere singole, una matrimoniale, due bagni, soggiorno con cucina, spogliatoio, lavanderia, terrazza, 479.00 + parti condominiali
Appartamento Mq 116.00
Terrazza mq 360/3 = 120
Parti comuni mq 3
Totale commerciale mq 236.00

 

 
:::::::::::::::::::::::::::::::::: ::::::::::: Geranio s.r.l. -Via De Titta 106 - 64025 Pineto (TE) tel. Fax. 085.9491803 :::::::::: ::::::::::::::::::::::::::::::::::